Producten
Urban Distribution Network RMU
  • Urban Distribution Network RMUUrban Distribution Network RMU
  • Urban Distribution Network RMUUrban Distribution Network RMU
  • Urban Distribution Network RMUUrban Distribution Network RMU
  • Urban Distribution Network RMUUrban Distribution Network RMU
  • Urban Distribution Network RMUUrban Distribution Network RMU
  • Urban Distribution Network RMUUrban Distribution Network RMU

Urban Distribution Network RMU

KXRM6-12 type stedelijk distributienetwerk RMU geproduceerd door KexR, een professionele fabrikant van stroomtransmissie en distributieapparatuur in China, is een compact gas-geïsoleerde ringnetwerkkast van 12 kV, die gebruik maakt van milieuvriendelijk isolatiegas als isolerend medium en is geschikt voor ringnetwerkvoeding, kabelbescherming en terminale distributie-netwerk. Dit product heeft de kenmerken van miniaturisatie, intelligentie en hoge betrouwbaarheid, die voldoet aan de ontwikkelingsbehoeften van het moderne slimme grid.
Model: KXRM6-12
Merk: Kexr

○ Ontwerpfunctie van het KXRM6 -type stedelijke distributienetwerk RMU

KXRM6 Type Urban Distribution Network RMU hanteert het modulair ontwerpschema en de basismodule -eenheden zijn Load Switch -module, gecombineerde elektrische apparatenmodule en andere speciale functionele modules. Elke combinatie van deze modules vormt een gemeenschappelijke doosstructuur. In de gecombineerde module is elke functie ongeveer hetzelfde als de interne structuur van de basismodule.


○ Urban Distribution Network RMU met behulp van voorwaarden

KXRM6-12 Type Urban Distribution Network RMU is geschikt voor hoge en lage temperatuur (+40 ℃ ~ -40 ℃), vocht, stof, zoutvervuiling, mijnen, grote hoogte (L000) en andere omgevingen. Kortetermijn onderdompeling in water binnen 24 uur heeft geen invloed op het gebruik. Opmerking: als de hoogte hoger is, geef dan de specifieke hoogte aan.

○ Normen

Urban Distribution Network RMU voldoet aan de onderstaande normen

Isten internationale normen

IEC60056, IEC60298, IEC60129, IEC60420, IEC60265, IEC60694, etc.

▶ China standaard

GB3804, GB3906, GB11022, etc.

○ Hoofd technische parameters van het KXRM6-12 Type Urban Distribution Network RMU

Urban Distribution Network Rmu


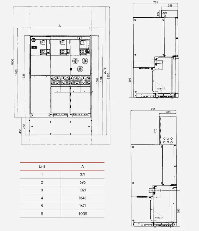
○ Structurele tekening en afmetingen van het stedelijke distributienetwerk RMU

Urban Distribution Network RmuUrban Distribution Network RmuUrban Distribution Network RmuUrban Distribution Network Rmu



Hottags: Urban Distribution Network RMU
Stuur onderzoek
Contact informatie
Voor vragen over kabelbakken, hoogspanningsschakelaars, lage spanning switchgear of prijslijst, laat uw e -mail aan ons over en we nemen binnen 24 uur contact met ons op.
X
We gebruiken cookies om u een betere browse-ervaring te bieden, het siteverkeer te analyseren en de inhoud te personaliseren. Door deze site te gebruiken, gaat u akkoord met ons gebruik van cookies. Privacybeleid
Afwijzen Accepteren